联系客服
400-888-9999
三亚湾红树林二期现买现住 全款按揭均享97折2019-12-07
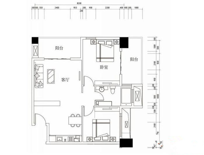
三亚湾红树林位于三亚市区三亚湾凤凰路,项目二期火热在售,户型多样,57-300平一房到三房可满足不同人群需求,均价30000元/平,全款、按揭均可享97折优惠,不分期。二期工程现已全部完工,已是现房在售,小区园林绿化都已经做好,今年6月30日已全面交房。...
三亚湾红树林现房全款95折 折后30000元/㎡起2017-08-28
三亚湾红树林位于三亚市区三亚湾凤凰路。项目现房在售,一次性付款享95折,按揭无折扣。项目户型样式比较多,50-160一房到三房可满足不同人群需求。 三亚湾红树林坐落于享有椰梦长廊之美称的三亚湾未来的行政中心区,距离凤凰国际机...
三亚湾红树林高档小区均价32000元/平 可拎包入住2017-08-28
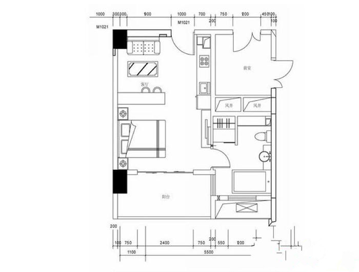
三亚湾红树林位于三亚市区三亚湾凤凰路。项目现房在售,均价32000元/平,含5000元/平精装,可拎包入住,一次性付款享98折,在售户型建筑面积有57、74、77平开间。 三亚湾红树林坐落于享有椰梦长廊之美称的三亚湾未来的行政中...
第一时间了解楼盘信息
定制自己的看房路线
报名看房可获取购房优惠

| 项目特色 | 投资地产 创意地产 酒店式公寓 | 装修状况 | 精装 | 物业类型 | 住宅 海景房 酒店式公寓 |
| 占地面积 | 266666.66平方米 | 建筑面积 | 700000平方米 | 物 业 费 | 6.8元 |
| 容 积 率 | 2.00 | 绿 化 率 | 55% | 规划户数 | 5600套 |
| 物业公司 | 红树林国际酒店管理公司 | 主力户型 | 7-G户型 1房1厅1厨1卫 57㎡ | 停 车 位 | 1636个 |
| 栋数 | 8栋 | 房屋产权 | 暂无资料 | 预售许可证 | 三房预许字[2010]021号,三房预许字[2010]039号 |
| 开 发 商 | 三亚红树林旅游文化地产开发有限公司 | 售楼电话 | 400-888-9999 | 售楼地址 | 三亚市三亚湾凤凰路沿线 |
楼盘信息由开发商提供,最终以政府部门登记备案为准,请谨慎核查。本站所有房源均为"一房一价"。如该楼盘信息有误,您可以投诉或拔打举报电话:400-888-9999.