联系客服
400-888-9999
第一时间了解楼盘信息
定制自己的看房路线
报名看房可获取购房优惠

| 项目特色 | 温泉社区 高层公寓 高档小区 复合地产 | 装修状况 | 精装 | 物业类型 | 别墅 |
| 占地面积 | 673333.3平方米 | 建筑面积 | 320000平方米 | 物 业 费 | 69元/㎡·月 |
| 容 积 率 | 0.48 | 绿 化 率 | 70% | 规划户数 | 106户 |
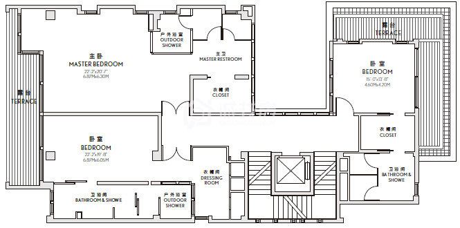
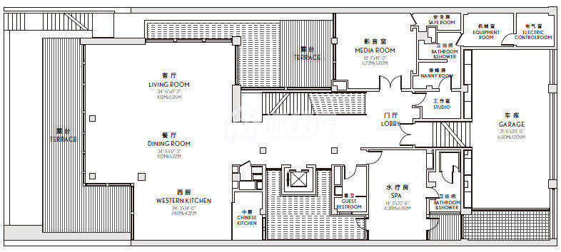
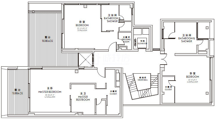
| 物业公司 | 暂无资料 | 主力户型 | (建筑面积)505㎡(别墅)、 | 停 车 位 | 106个 |
| 栋数 | 29栋 | 房屋产权 | 40 | 预售许可证 | 三房预许字[2018]1号 |
| 开 发 商 | 海南建丰旅业开发有限公司 | 售楼电话 | 400-888-9999 | 售楼地址 | 海南省三亚市海棠湾椰洲国家海岸一线地四季酒店组团 |
楼盘信息由开发商提供,最终以政府部门登记备案为准,请谨慎核查。本站所有房源均为"一房一价"。如该楼盘信息有误,您可以投诉或拔打举报电话:400-888-9999.